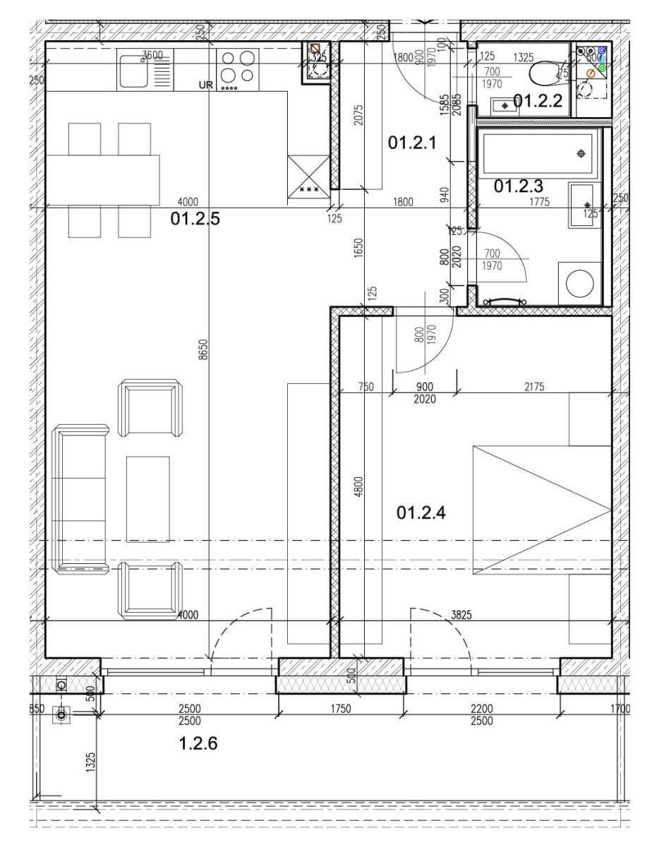
Byt 00.2

podlažie

-1

počet izieb

2
Celková plocha 77.67 m²
Úžitková plocha 65.32 m²
Predsieň (1. 2. 1 ) 6.7 m²
Kúpeľňa (01.2.3 ) 4.48 m²
Wc (01.2.2 ) 1.42 m²
Obývačka + kuchyňa (01.2.5 ) 34.36 m²
Spálňa (01.2.4 ) 18.36 m²
Terasa (01.2.6 ) 12.35 m²
Stav predaný

K bytu je možné dokúpiť parkovacie miesto.

Garážové státie Pozrieť ponuku
Vonkajšie státie Pozrieť ponuku

K bytu je možné dokúpiť pivničnú kobku. Pivničné kobky sa nachádzajú na každom podlaží vedľa bytov.

Úžitková plocha 4.7m²
Cena kobky na dopyt
Na prispôsobenie obsahu a analýzu návštevnosti používame súbory cookie. Rozhodnite sa, či ste ochotní prijímať súbory cookie z našich webových stránok.