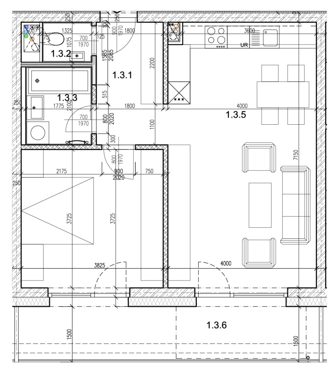
Byt 1.3

podlažie

1

počet izieb

2
Celková plocha 65.29 m²
Úžitková plocha 53.7 m²
Predsieň (1.3.1 ) 5.94 m²
Kúpeľňa (1.3.3 ) 3.73 m²
Wc (1.3.2 ) 1.42 m²
Obývačka + kuchyňa (1.3.5 ) 28.36 m²
Spálňa (1.3.4 ) 14.25 m²
Terasa (1.3.6 ) 11.59 m²
Stav predaný

K bytu je možné dokúpiť parkovacie miesto.

Garážové státie Pozrieť ponuku
Vonkajšie státie Pozrieť ponuku

K bytu je možné dokúpiť pivničnú kobku. Pivničné kobky sa nachádzajú na každom podlaží vedľa bytov.

Úžitková plocha 4.7m²
Cena kobky na dopyt
Na prispôsobenie obsahu a analýzu návštevnosti používame súbory cookie. Rozhodnite sa, či ste ochotní prijímať súbory cookie z našich webových stránok.