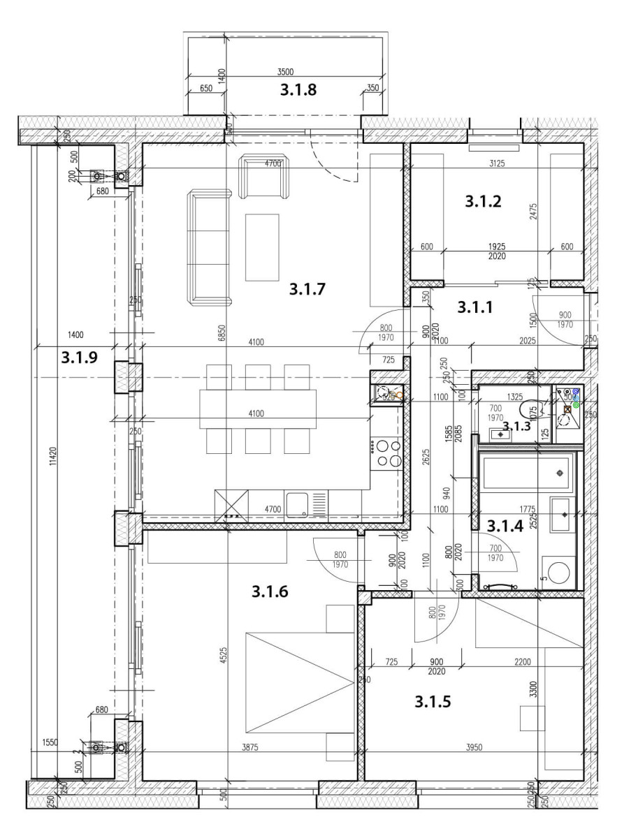
Byt 3.1

podlažie

3

počet izieb

Celková plocha 106.86 m²
Úžitková plocha 85.97 m²
Chodba (3.1.1. ) 9.97 m²
Kúpeľňa (3.1.4 ) 4.48 m²
Wc (3.1.3 ) 1.42 m²
Izba (3.1.5 ) 13.03 m²
Obývačka + kuchyňa (3.1.7 ) 31.81 m²
Šatník (3.1.2 ) 7.73 m²
Spálňa (3.1.6 ) 17.53 m²
Balkón 1(3.1.8 ) 4.9 m²
Balkón 2 (3.1.9 ) 15.99 m²
Stav predaný

K bytu je možné dokúpiť parkovacie miesto.

Garážové státie Pozrieť ponuku
Vonkajšie státie Pozrieť ponuku

K bytu je možné dokúpiť pivničnú kobku. Pivničné kobky sa nachádzajú na každom podlaží vedľa bytov.

Úžitková plocha 4.7m²
Cena kobky na dopyt
Na prispôsobenie obsahu a analýzu návštevnosti používame súbory cookie. Rozhodnite sa, či ste ochotní prijímať súbory cookie z našich webových stránok.