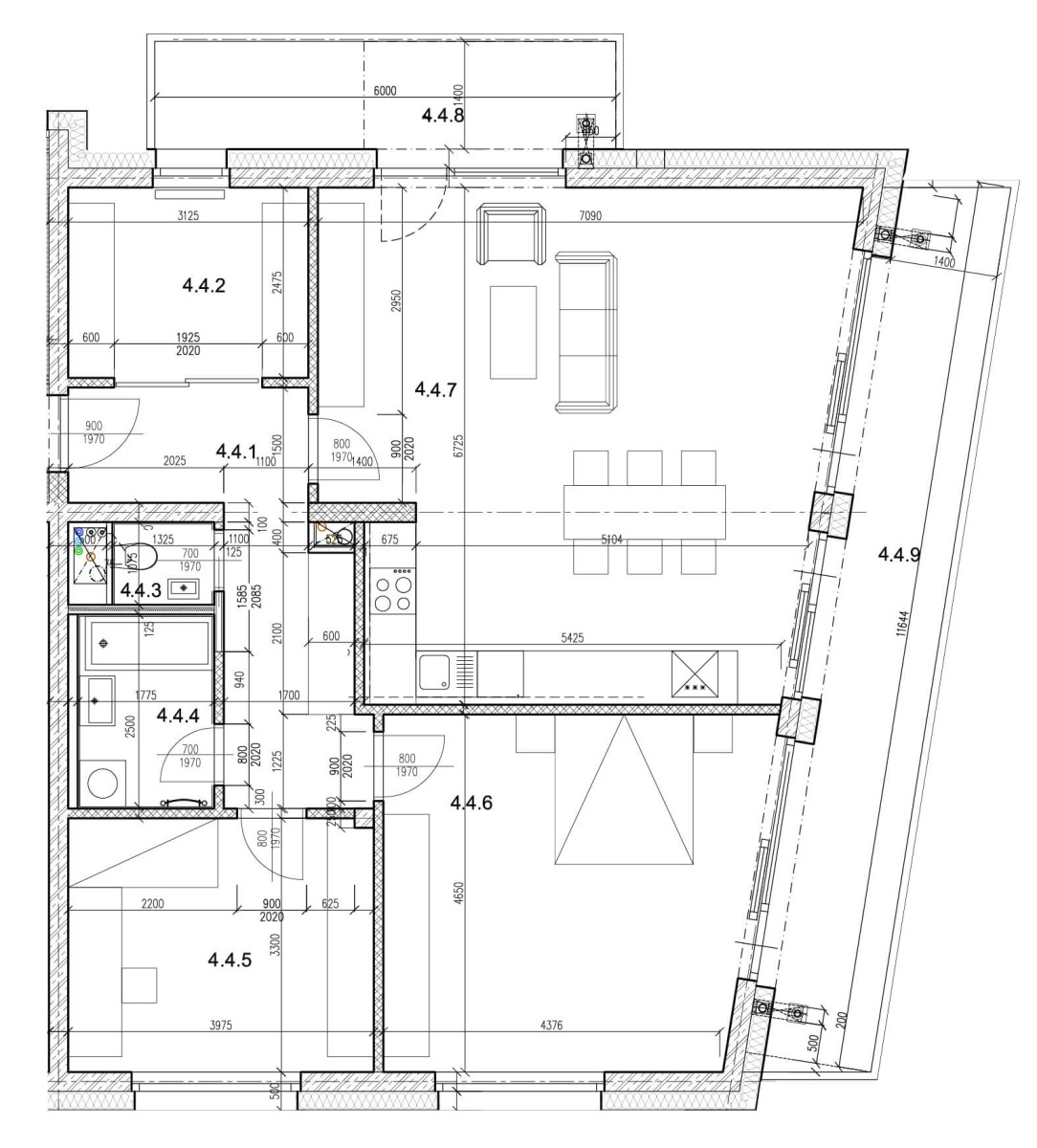
Byt 4.4

podlažie

4

počet izieb

Celková plocha 123,91 m²
Úžitková plocha 102.71 m²
Chodba (4.4.1 ) 11.36 m²
Kúpeľňa (4.4.4 ) 4.48 m²
Wc (4.4.3 ) 1.42 m²
Izba (4.4.5 ) 13.12 m²
Obývačka + kuchyňa (4.4.7 ) 42.35 m²
Šatník (4.4.2 ) 7.73 m²
Spálňa (4.4.6 ) 22.25 m²
Balkón 1(4.4.8 ) 8.61 m²
Balkón 2 (4.4.9 ) 16.63 m²
Stav predaný

K bytu je možné dokúpiť parkovacie miesto.

Garážové státie Pozrieť ponuku
Vonkajšie státie Pozrieť ponuku

K bytu je možné dokúpiť pivničnú kobku. Pivničné kobky sa nachádzajú na každom podlaží vedľa bytov.

Úžitková plocha 4.7m²
Cena kobky na dopyt
Na prispôsobenie obsahu a analýzu návštevnosti používame súbory cookie. Rozhodnite sa, či ste ochotní prijímať súbory cookie z našich webových stránok.